Meaningful Prefabrication
Meaningful prefabrication, designed to make on-site construction easier faster & smarter.
Our services:
Prefabrication Feasibility Studies
Stick build v onsite build hours based comparison
Standardised modules – 1 drawing used for several instances.
CRAC / AHU hookups
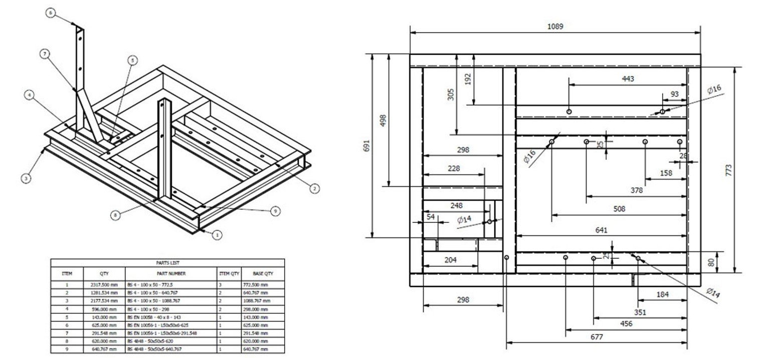
Chilled Water Pump Skids
Electrical Containment
Module Map
Hyperscale data centre construction
Logistic planning – Swept path analysis
Lifting coordination
Past Projects
Explore a curated collection of our past work, where imagination meets strategy. Each project reflects our drive to deliver thoughtful, effective solutions.
Client
The Atlas Project
Year
01/01/0001
Year
01/01/0001
Client
The Echo Project
Our in-house expertise regularly design, construct, commission complex MEP modules from inception to completion. We understand the process to develop a design into fabrication & also the challenges & opportunities for successful construction.

