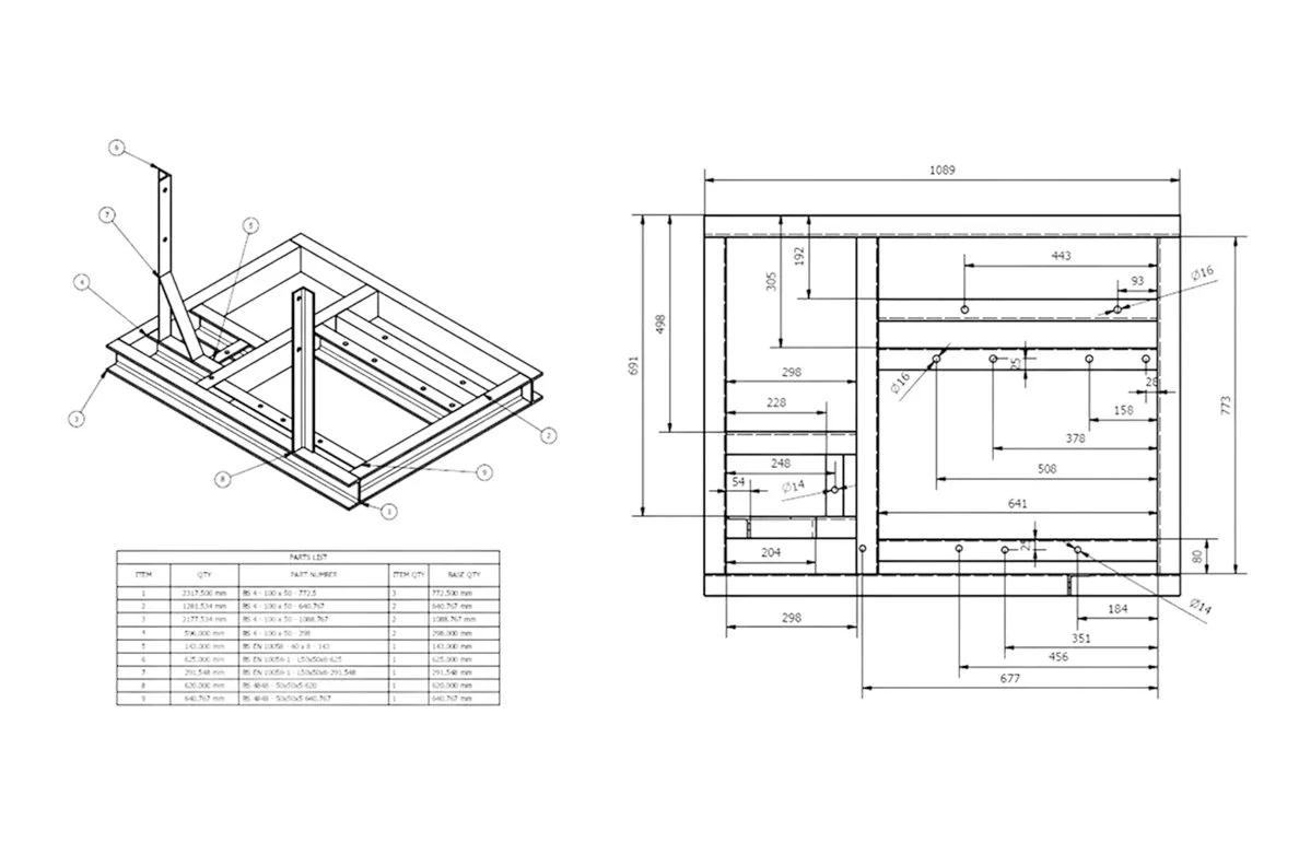
Prefabrication: Data Centre
Meaningful prefabrication, designed to make on-site construction easier faster & smarter.
Our in-house expertise regularly design, construct, commission complex MEP modules from inception to completion. We understand the process to develop a design into fabrication & also the challenges & opportunities for successful construction.
-
Description text goes here
-
Description text goes here
-
Description text goes here
Data Centre – Prefabrication
Meaningful prefabrication, designed to make on-site construction easier faster & smarter.
Our Services:
Prefabrication Feasibility Studies
Stick build v onsite build hours based comparison
Standardised modules – 1 drawing used for several instances.
CRAC / AHU hookups
Chilled Water Pump Skids
Electrical Containment
Module Map
Hyperscale data centre construction
Logistic planning – Swept path analysis
Lifting coordination
Our in-house expertise regularly design, construct, commission complex MEP modules from inception to completion. We understand the process to develop a design into fabrication & also the challenges & o
HVAC
-
HEPA Filter selection & Detailing
AHU selection & procurement
Instrumentation & controls engineering
Pressure cascade planning
AHU distribution systems
Ductwork velocity calculations & ductwork sizing
GMP Cleanroom environment compliance
VDI 6022
IQ / OQ Engineering support
-
Humidity control
PUE performance calculations
Ductwork AHU plantroom design
Cooling Units / CRAC units selection & procurement
FAT /SAT attendance
Fire damper engineering
Instrumentation & controls engineering
Process water interfaces / cooling units
Hot Aisle Containment / Cold Aisle containment pressure regime
Compliance testing against ASHRAE, & Uptime institution
-
Heating & Cooling Loads for HVAC sizing & system design
Dynamic modelling of HVAC performance
Simulation of Airflow, ventilation rates & temperature distribution
Energy consumption for forecasting for various occupancy & load scenarios
Modelling hot aisle / cold aisle containment in data centres
Energy saving opportunities and distribution systems
Support for LEED / BREEAM energy credits
-
Duct sizing based on pressure droop, velocity & flow requirements
Static pressure calculations for AHU & Fan sizing
Verification of sizing against energy performance criteria – Watts / L per second
Load based equipment sizing AHUs, FCUs, chillers, boilers
Selection of air terminal devices and diffusers for optimal air distribution & pressure drop
-
Onsite placement for pro project based HVAC engineering management
Review & validation of mechniacla drawings, schematics, and internal teams
Oversight of HVAC equipment procurement & submittal process
Technical support during installation
Progress tracking against milestones
Liaison with suppliers & subcontractors, package management
QAQC documentation support
Interface management – building automation system
Completions and handover support
HVAC
-
HEPA Filter selection & Detailing
AHU selection & procurement
Instrumentation & controls engineering
Pressure cascade planning
AHU distribution systems
Ductwork velocity calculations & ductwork sizing
GMP Cleanroom environment compliance
VDI 6022
IQ / OQ Engineering support
-
Humidity control
PUE performance calculations
Ductwork AHU plantroom design
Cooling Units / CRAC units selection & procurement
FAT /SAT attendance
Fire damper engineering
Instrumentation & controls engineering
Process water interfaces / cooling units
Hot Aisle Containment / Cold Aisle containment pressure regime
Compliance testing against ASHRAE, & Uptime institution
-
Heating & Cooling Loads for HVAC sizing & system design
Dynamic modelling of HVAC performance
Simulation of Airflow, ventilation rates & temperature distribution
Energy consumption for forecasting for various occupancy & load scenarios
Modelling hot aisle / cold aisle containment in data centres
Energy saving opportunities and distribution systems
Support for LEED / BREEAM energy credits
-
Duct sizing based on pressure droop, velocity & flow requirements
Static pressure calculations for AHU & Fan sizing
Verification of sizing against energy performance criteria – Watts / L per second
Load based equipment sizing AHUs, FCUs, chillers, boilers
Selection of air terminal devices and diffusers for optimal air distribution & pressure drop
-
Onsite placement for pro project based HVAC engineering management
Review & validation of mechniacla drawings, schematics, and internal teams
Oversight of HVAC equipment procurement & submittal process
Technical support during installation
Progress tracking against milestones
Liaison with suppliers & subcontractors, package management
QAQC documentation support
Interface management – building automation system
Completions and handover support
HVAC
-
HEPA Filter selection & Detailing
AHU selection & procurement
Instrumentation & controls engineering
Pressure cascade planning
AHU distribution systems
Ductwork velocity calculations & ductwork sizing
GMP Cleanroom environment compliance
VDI 6022
IQ / OQ Engineering support
-
Humidity control
PUE performance calculations
Ductwork AHU plantroom design
Cooling Units / CRAC units selection & procurement
FAT /SAT attendance
Fire damper engineering
Instrumentation & controls engineering
Process water interfaces / cooling units
Hot Aisle Containment / Cold Aisle containment pressure regime
Compliance testing against ASHRAE, & Uptime institution
-
Heating & Cooling Loads for HVAC sizing & system design
Dynamic modelling of HVAC performance
Simulation of Airflow, ventilation rates & temperature distribution
Energy consumption for forecasting for various occupancy & load scenarios
Modelling hot aisle / cold aisle containment in data centres
Energy saving opportunities and distribution systems
Support for LEED / BREEAM energy credits
-
Duct sizing based on pressure droop, velocity & flow requirements
Static pressure calculations for AHU & Fan sizing
Verification of sizing against energy performance criteria – Watts / L per second
Load based equipment sizing AHUs, FCUs, chillers, boilers
Selection of air terminal devices and diffusers for optimal air distribution & pressure drop
-
Onsite placement for pro project based HVAC engineering management
Review & validation of mechniacla drawings, schematics, and internal teams
Oversight of HVAC equipment procurement & submittal process
Technical support during installation
Progress tracking against milestones
Liaison with suppliers & subcontractors, package management
QAQC documentation support
Interface management – building automation system
Completions and handover support
PIPING
-
Development of 2D/3D pipework layouts based on system requirements and spatial constraints
Routing of pipe systems (chilled water, heating, process, domestic) to optimise space and maintain access
Coordination of pipework with structural, architectural, and MEP services to avoid clashes
Sizing of pipes based on flow rate, velocity, and pressure drop calculations
Selection of materials and specifications based on system type, medium, and operating conditions
Integration of supports, anchors, and expansion allowances for thermal movement
Layouts for plantrooms, risers, corridors, and distribution zones
Creation of isometric drawings and spool sheets for fabrication and installation
Compliance with project standards, building codes, and industry best practices
Review and incorporation of supplier and vendor data into final design
-
Evaluation of thermal expansion, contraction, and movement across pipe networks
Analysis of stress concentrations at bends, anchors, and equipment connections
Load assessment due to internal pressure, weight, and dynamic forces
Calculation of allowable stress levels based on material properties and design codes
Design and placement of supports, guides, and expansion loops to manage pipe movement
Verification of flange alignments and equipment nozzle load compliance
Simulation of operating and standby scenarios to validate system resilience
Assessment of seismic, wind, and vibration impacts where applicable
Compliance with relevant standards (EN 13480, ASME B31.3, PED, etc.)
Generation of stress reports for design approval, fabrication, and installation teams
-
Pressure drop calculations across pipe networks to verify pump sizing and system balance
Flow resistance analysis for valves, fittings, bends, and equipment connections
Verification of pipe velocities to prevent erosion, noise, and flow instability
Calculation of total dynamic head (TDH) for system performance validation
Static load analysis to assess pipe support and anchoring requirements
Assessment of thermal expansion and associated stress on piping systems
Verification of material suitability for pressure, temperature, and medium type
Structural load calculations for pipe racks, hangers, and suspended systems
Compliance with project specifications, local regulations, and EN/ISO standards
Documentation of all calculations for engineering sign-off and client assurance
-
Development of fabrication-ready isometric drawings and spool sheets
Coordination of pipe routing for modular assembly
Logistical planning for transport, lifting, and site installation incorporated into the design
BIM-based clash detection and layout optimisation for prefabrication feasibility
Material take-offs (MTOs) and bill of materials
Integration of supports, anchors, and access considerations into offsite modules
Fabrication sequencing aligned with construction programme
Interface coordination between prefabricated elements and site
Logistical planning for transport, lifting, and site installation
Reduction of site hours, waste, and installation time through controlled offsite execution
-
Detailed design of high-purity and process-critical pipework systems (e.g., WFI, clean steam, process gases)
Material specification and compatibility checks for media, pressure, and temperature requirements
Isometric development for fabrication, testing, and installation
GMP-compliant routing, segregation, and support planning
Hygienic design principles including slope control, drainability, and orbital welding integration
Pressure testing, flushing, and passivation planning
Coordination of valves, instruments, and tie-ins with process equipment
Pre-construction review and verification of P&IDs and process schematics
Field engineering support during install, weld inspections, and redline updates
Support for turnover documentation (as-builts, weld logs, test packs) and validation readiness
-
Design and coordination of chilled water, condenser water, and process cooling systems
Support for hot/cold aisle containment strategies and thermal zone planning
BIM coordination and clash detection with electrical and IT infrastructure
Pump and valve sizing based on N+1 and 2N redundancy requirements
Selection of materials and insulation for thermal efficiency and fire performance
Modular
Commissionable reviews
Integration with BMS and control systems for flow, temperature, and pressure monitoring
Compliance with Tier standards (Uptime Institute) and ASHRAE thermal guideline
-
Coordination of piping design packages with client teams
Technical review of isometrics, GA drawings, and P&IDs
Oversight of prefabrication and on-site installation sequencing
Fabrication Progress monitoring & material management
Interface management with other trades (HVAC, electrical, structural) to resolve clashes
Material take-off (MTO) verifications
QA/QC support including weld map reviews, hydrotest planning, and inspection readiness
Contribution to commissioning preparation, flushing, pressure testing, and system validation
Daily reporting and tracking of installation milestones and resource productivity
Support for turnover documentation, redline updates, and handover compliance
PIPING
-
Development of 2D/3D pipework layouts based on system requirements and spatial constraints
Routing of pipe systems (chilled water, heating, process, domestic) to optimise space and maintain access
Coordination of pipework with structural, architectural, and MEP services to avoid clashes
Sizing of pipes based on flow rate, velocity, and pressure drop calculations
Selection of materials and specifications based on system type, medium, and operating conditions
Integration of supports, anchors, and expansion allowances for thermal movement
Layouts for plantrooms, risers, corridors, and distribution zones
Creation of isometric drawings and spool sheets for fabrication and installation
Compliance with project standards, building codes, and industry best practices
Review and incorporation of supplier and vendor data into final design
-
Evaluation of thermal expansion, contraction, and movement across pipe networks
Analysis of stress concentrations at bends, anchors, and equipment connections
Load assessment due to internal pressure, weight, and dynamic forces
Calculation of allowable stress levels based on material properties and design codes
Design and placement of supports, guides, and expansion loops to manage pipe movement
Verification of flange alignments and equipment nozzle load compliance
Simulation of operating and standby scenarios to validate system resilience
Assessment of seismic, wind, and vibration impacts where applicable
Compliance with relevant standards (EN 13480, ASME B31.3, PED, etc.)
Generation of stress reports for design approval, fabrication, and installation teams
-
Pressure drop calculations across pipe networks to verify pump sizing and system balance
Flow resistance analysis for valves, fittings, bends, and equipment connections
Verification of pipe velocities to prevent erosion, noise, and flow instability
Calculation of total dynamic head (TDH) for system performance validation
Static load analysis to assess pipe support and anchoring requirements
Assessment of thermal expansion and associated stress on piping systems
Verification of material suitability for pressure, temperature, and medium type
Structural load calculations for pipe racks, hangers, and suspended systems
Compliance with project specifications, local regulations, and EN/ISO standards
Documentation of all calculations for engineering sign-off and client assurance
-
Development of fabrication-ready isometric drawings and spool sheets
Coordination of pipe routing for modular assembly
Logistical planning for transport, lifting, and site installation incorporated into the design
BIM-based clash detection and layout optimisation for prefabrication feasibility
Material take-offs (MTOs) and bill of materials
Integration of supports, anchors, and access considerations into offsite modules
Fabrication sequencing aligned with construction programme
Interface coordination between prefabricated elements and site
Logistical planning for transport, lifting, and site installation
Reduction of site hours, waste, and installation time through controlled offsite execution
-
Detailed design of high-purity and process-critical pipework systems (e.g., WFI, clean steam, process gases)
Material specification and compatibility checks for media, pressure, and temperature requirements
Isometric development for fabrication, testing, and installation
GMP-compliant routing, segregation, and support planning
Hygienic design principles including slope control, drainability, and orbital welding integration
Pressure testing, flushing, and passivation planning
Coordination of valves, instruments, and tie-ins with process equipment
Pre-construction review and verification of P&IDs and process schematics
Field engineering support during install, weld inspections, and redline updates
Support for turnover documentation (as-builts, weld logs, test packs) and validation readiness
-
Design and coordination of chilled water, condenser water, and process cooling systems
Support for hot/cold aisle containment strategies and thermal zone planning
BIM coordination and clash detection with electrical and IT infrastructure
Pump and valve sizing based on N+1 and 2N redundancy requirements
Selection of materials and insulation for thermal efficiency and fire performance
Modular
Commissionable reviews
Integration with BMS and control systems for flow, temperature, and pressure monitoring
Compliance with Tier standards (Uptime Institute) and ASHRAE thermal guideline
-
Coordination of piping design packages with client teams
Technical review of isometrics, GA drawings, and P&IDs
Oversight of prefabrication and on-site installation sequencing
Fabrication Progress monitoring & material management
Interface management with other trades (HVAC, electrical, structural) to resolve clashes
Material take-off (MTO) verifications
QA/QC support including weld map reviews, hydrotest planning, and inspection readiness
Contribution to commissioning preparation, flushing, pressure testing, and system validation
Daily reporting and tracking of installation milestones and resource productivity
Support for turnover documentation, redline updates, and handover compliance
PIPING
-
Development of 2D/3D pipework layouts based on system requirements and spatial constraints
Routing of pipe systems (chilled water, heating, process, domestic) to optimise space and maintain access
Coordination of pipework with structural, architectural, and MEP services to avoid clashes
Sizing of pipes based on flow rate, velocity, and pressure drop calculations
Selection of materials and specifications based on system type, medium, and operating conditions
Integration of supports, anchors, and expansion allowances for thermal movement
Layouts for plantrooms, risers, corridors, and distribution zones
Creation of isometric drawings and spool sheets for fabrication and installation
Compliance with project standards, building codes, and industry best practices
Review and incorporation of supplier and vendor data into final design
-
Evaluation of thermal expansion, contraction, and movement across pipe networks
Analysis of stress concentrations at bends, anchors, and equipment connections
Load assessment due to internal pressure, weight, and dynamic forces
Calculation of allowable stress levels based on material properties and design codes
Design and placement of supports, guides, and expansion loops to manage pipe movement
Verification of flange alignments and equipment nozzle load compliance
Simulation of operating and standby scenarios to validate system resilience
Assessment of seismic, wind, and vibration impacts where applicable
Compliance with relevant standards (EN 13480, ASME B31.3, PED, etc.)
Generation of stress reports for design approval, fabrication, and installation teams
-
Pressure drop calculations across pipe networks to verify pump sizing and system balance
Flow resistance analysis for valves, fittings, bends, and equipment connections
Verification of pipe velocities to prevent erosion, noise, and flow instability
Calculation of total dynamic head (TDH) for system performance validation
Static load analysis to assess pipe support and anchoring requirements
Assessment of thermal expansion and associated stress on piping systems
Verification of material suitability for pressure, temperature, and medium type
Structural load calculations for pipe racks, hangers, and suspended systems
Compliance with project specifications, local regulations, and EN/ISO standards
Documentation of all calculations for engineering sign-off and client assurance
-
Development of fabrication-ready isometric drawings and spool sheets
Coordination of pipe routing for modular assembly
Logistical planning for transport, lifting, and site installation incorporated into the design
BIM-based clash detection and layout optimisation for prefabrication feasibility
Material take-offs (MTOs) and bill of materials
Integration of supports, anchors, and access considerations into offsite modules
Fabrication sequencing aligned with construction programme
Interface coordination between prefabricated elements and site
Logistical planning for transport, lifting, and site installation
Reduction of site hours, waste, and installation time through controlled offsite execution
-
Detailed design of high-purity and process-critical pipework systems (e.g., WFI, clean steam, process gases)
Material specification and compatibility checks for media, pressure, and temperature requirements
Isometric development for fabrication, testing, and installation
GMP-compliant routing, segregation, and support planning
Hygienic design principles including slope control, drainability, and orbital welding integration
Pressure testing, flushing, and passivation planning
Coordination of valves, instruments, and tie-ins with process equipment
Pre-construction review and verification of P&IDs and process schematics
Field engineering support during install, weld inspections, and redline updates
Support for turnover documentation (as-builts, weld logs, test packs) and validation readiness
-
Design and coordination of chilled water, condenser water, and process cooling systems
Support for hot/cold aisle containment strategies and thermal zone planning
BIM coordination and clash detection with electrical and IT infrastructure
Pump and valve sizing based on N+1 and 2N redundancy requirements
Selection of materials and insulation for thermal efficiency and fire performance
Modular
Commissionable reviews
Integration with BMS and control systems for flow, temperature, and pressure monitoring
Compliance with Tier standards (Uptime Institute) and ASHRAE thermal guideline
-
Coordination of piping design packages with client teams
Technical review of isometrics, GA drawings, and P&IDs
Oversight of prefabrication and on-site installation sequencing
Fabrication Progress monitoring & material management
Interface management with other trades (HVAC, electrical, structural) to resolve clashes
Material take-off (MTO) verifications
QA/QC support including weld map reviews, hydrotest planning, and inspection readiness
Contribution to commissioning preparation, flushing, pressure testing, and system validation
Daily reporting and tracking of installation milestones and resource productivity
Support for turnover documentation, redline updates, and handover compliance
Building Automation System
Custom energy monitoring dashboarding
Trend analysis and reporting
Load balancing and demand control
Live Energy efficiency calculations: PUE
Meter integration:
Load spikes alert setup
Peak load analysis for cost saving
Energy Controlling and dashboarding
Custom energy monitoring dashboarding
Trend analysis and reporting
Load balancing and demand control
Live Energy efficiency calculations: PUE
Meter integration:
Load spikes alert setup
Peak load analysis for cost saving
BMS / BAS Panel Design
Project Engineering Placement - BMS / BAS
-
Set-up of I/O points, device addressing, and control logic
Integration with HVAC, metering, and lighting systems
Programming of controllers (Tridium, Siemens, Honeywell, Schneider)
-
Support panel connection, loop checks, and signal verification
Ensure clean, labelled wiring practices and interface mapping
Work alongside panel fabricators and site electricians
-
Execute point-to-point checks and sequence validation management
Populate commissioning sheets and redline documentation
Coordinate with commissioning managers and controls vendors
-
Verify BACnet/Modbus network communication
Support BMS-SCADA integrations and network architecture reviews
Troubleshoot data errors and non-responsive systems
-
Prepare test records, as-builts, and O&M inputs
Assist in witnessing tests and completing sign-off packs
Support smooth handover to client teams or facilities management
Building Automation System
Energy Controlling and dashboarding
Custom energy monitoring dashboarding
Trend analysis and reporting
Load balancing and demand control
Live Energy efficiency calculations: PUE
Meter integration:
Load spikes alert setup
Peak load analysis for cost saving
-
Set-up of I/O points, device addressing, and control logic
Integration with HVAC, metering, and lighting systems
Programming of controllers (Tridium, Siemens, Honeywell, Schneider)
-
Support panel connection, loop checks, and signal verification
Ensure clean, labelled wiring practices and interface mapping
Work alongside panel fabricators and site electricians
-
Execute point-to-point checks and sequence validation management
Populate commissioning sheets and redline documentation
Coordinate with commissioning managers and controls vendors
-
Verify BACnet/Modbus network communication
Support BMS-SCADA integrations and network architecture reviews
Troubleshoot data errors and non-responsive systems
-
Prepare test records, as-builts, and O&M inputs
Assist in witnessing tests and completing sign-off packs
Support smooth handover to client teams or facilities management
TITLE 1
HEPA Filter selection & Detailing
AHU selection & procurement
Instrumentation & controls engineering
Pressure cascade planning
AHU distribution systems
Ductwork velocity calculations & ductwork sizing
GMP Cleanroom environment compliance
VDI 6022
IQ / OQ Engineering support
TITLE 2
HEPA Filter selection & Detailing
AHU selection & procurement
Instrumentation & controls engineering
Pressure cascade planning
AHU distribution systems
Ductwork velocity calculations & ductwork sizing
GMP Cleanroom environment compliance
VDI 6022
IQ / OQ Engineering support
TITLE 3
HEPA Filter selection & Detailing
AHU selection & procurement
Instrumentation & controls engineering
Pressure cascade planning
AHU distribution systems
Ductwork velocity calculations & ductwork sizing
GMP Cleanroom environment compliance
VDI 6022
IQ / OQ Engineering support
TITLE 4
HEPA Filter selection & Detailing
AHU selection & procurement
Instrumentation & controls engineering
Pressure cascade planning
AHU distribution systems
Ductwork velocity calculations & ductwork sizing
GMP Cleanroom environment compliance
VDI 6022
IQ / OQ Engineering support
Our Services
Explore our range of services designed to help you move forward with confidence, wherever you're headed next.
-
Flexible, expert advice when you need it. Book hourly support across a range of topics—from planning to problem-solving. This focused consultation will help clarify your goals, map out next steps, and identify opportunities for growth.
-
Flexible, expert advice when you need it. Book hourly support across a range of topics—from planning to problem-solving. This focused consultation will help clarify your goals, map out next steps, and identify opportunities for growth.
-
Flexible, expert advice when you need it. Book hourly support across a range of topics—from planning to problem-solving. This focused consultation will help clarify your goals, map out next steps, and identify opportunities for growth.
Contact us
Need project support or want to know more information?
We’re here to help — get in touch and a member of our team will be in touch shortly.

